Villa Tân Quỳnh

Danh mục:

Thi công

Phong cách:

Kiến trúc Đương đại

Phương hướng:

Chính Nam

Thời gian:

2023

Dự án nằm ở xã Xuân Quế, huyện Cẩm Mỹ, tỉnh Đồng Nai, cách thành phố Hồ Chí Minh khoảng 60km về phía Đông và nằm phía Nam của hồ Trị An hiền hòa.

Nhiệt độ ở Xuân Quế dao động trung bình trong khoảng 28 đến 34 độ C vào ban ngày và trong khoảng 20 đến 24 độ C vào ban đêm. Ngày nóng nhất là khoảng 34 độ C trong tháng 4, và thời điểm lạnh nhất là khoảng 20 độ C vào tháng 1. Mùa mưa rơi vào khoảng giữa tháng 5 và tháng 10. Còn mùa khô kéo dài từ tháng 11 đến cuối tháng 4.

Khu vực Xuân Quế chịu nhiều gió chủ đạo thổi từ hướng Đông - Đông Nam đến hướng Tây - Tây Nam, vốn chịu ảnh hưởng từ mùa và rừng cao su. Ngoài ra, có gió hướng Bắc thổi xuống hướng Nam và ngược lại do ảnh hưởng từ hồ Trị An. Vận tốc dao động trong khoảng 0.5 m/s đến 3m/s. Ngoài ra, còn có một số hướng từ phía Nam và Tây Nam với vận tốc khoảng 0.3 m/s đến 1.6 m/s

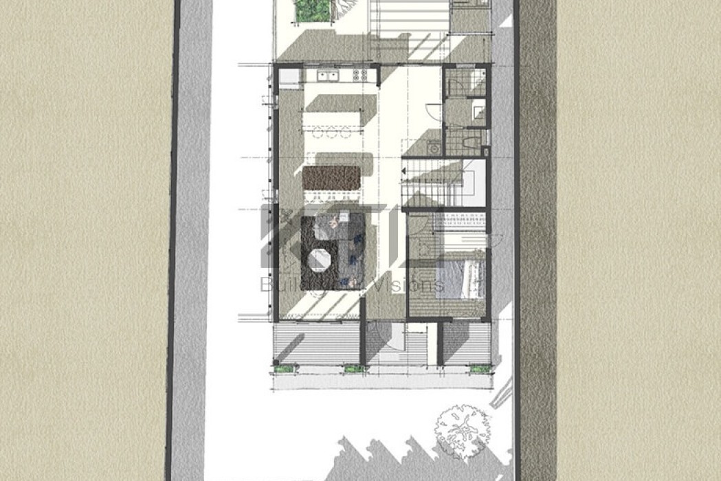
Mong muốn xây dựng ngôi nhà hài hòa với môi trường tự nhiên của Xuân Quế, rừng cao su và vườn sầu riêng của chủ đầu tư, KTU lên ý tưởng thiết kế ngôi nhà mang phong cách Đương Đại, áp dụng các kỹ thuật cần thiết bền vững với môi trường. Với villa Tân Quỳnh, các lam ngang được đặt phía mặt tiền phía Nam giúp hạn chế bức xạ mặt trời, giảm lượng nhiệt hấp thụ vào bên trong phòng. Ngoài ra, điểm đặc biệt của dự án này là khoảng thông tầng ngay khu vực phòng khách, giúp tăng sự thông thoáng, thoải mái với các hoạt động hằng ngày. Khoảng thông tầng này rất quan trọng trong việc thông gió cho cả căn nhà, mang làn gió mát từ hồ Trị An vào trong nhà và đẩy làn gió nóng bay lên trên tầng mái, giúp tiết kiệm năng lượng và làm mát hằng ngày, góp phần giảm CO2 tác động đến môi trường.